2015年9月16日 16时45分37秒
丙午[马]年三月初八
网站首页
信息公开
组织机构
新闻速读
工作动态
行业动态
通知公告
咨询单位管理
施工企业信用评价
信息公示
征求意见
综合规定
计价依据
信息公开
计价管理
价格信息
互动交流
市站资讯
价格信息
业务系统
建设工程材料系统
造价从业人员系统
福州市造价管理机构信息采集系统
互动交流
办事指南
表格下载
学习园地
投诉建议
曝光台
资料下载
信息公开
计价管理
价格信息
互动交流
市站资讯
您的位置:
首页
>
工程造价指标
>
老旧小区指标
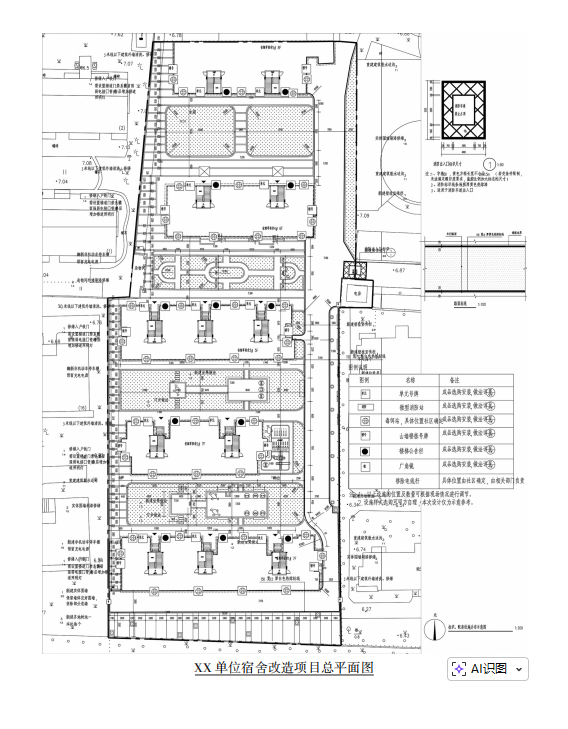
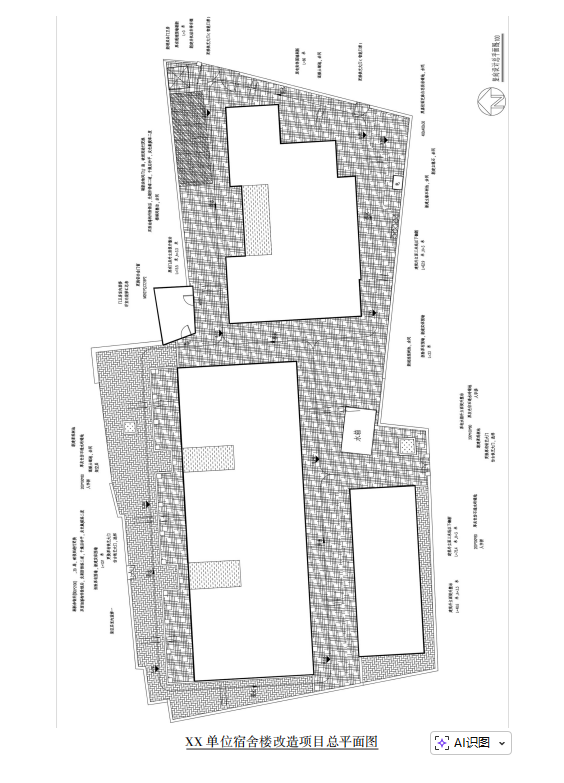
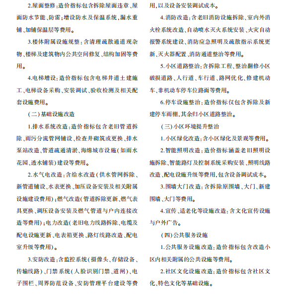
老旧小区改造项目指标——XX单位宿舍改造项目
发表于:
【 打印 】
【 关闭 】